CCFY
Location
Bronx, NY
Type
Other
Square Footage
1,850 sq. ft
Completion Year
2023
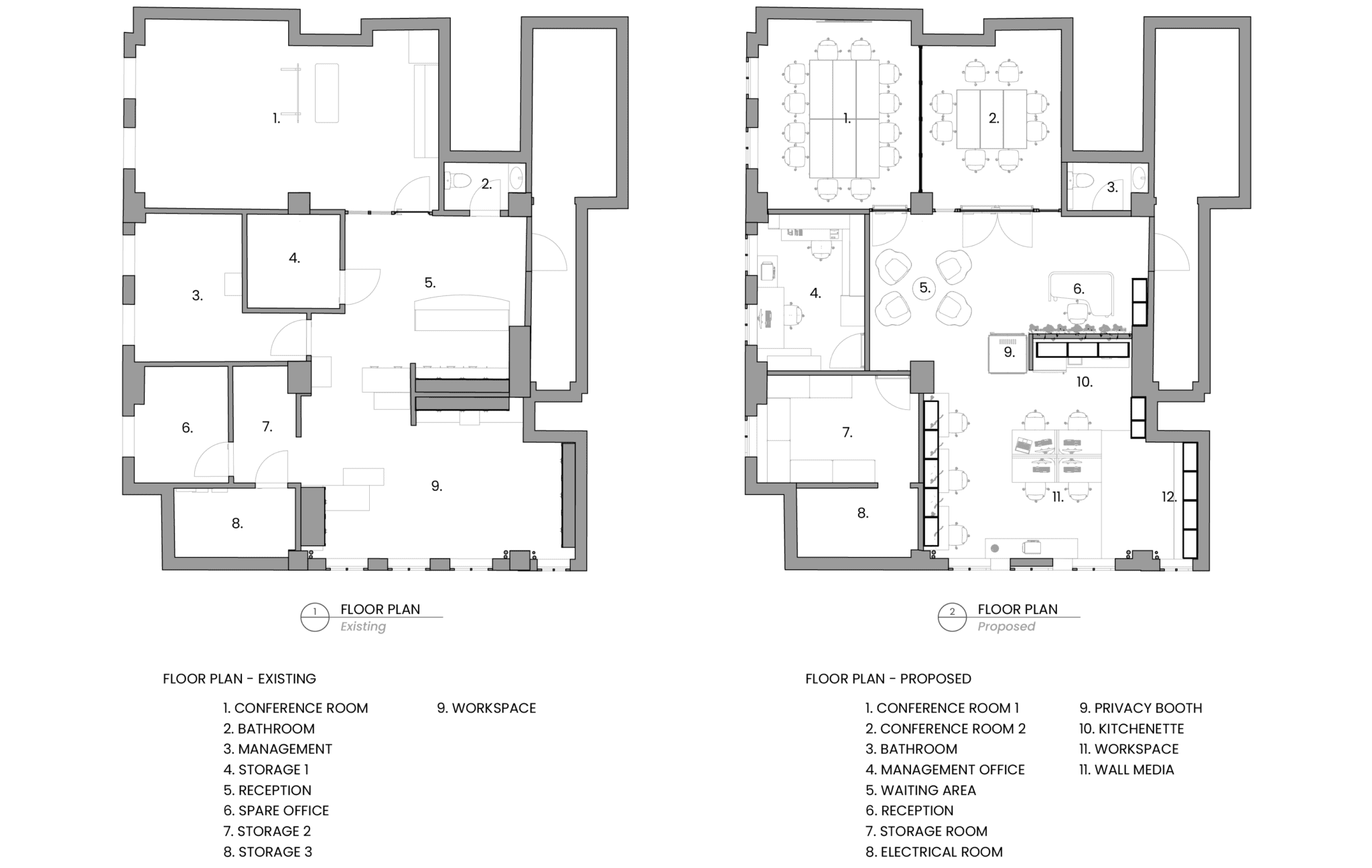
Community Connections for Youth (CCFY), a forward-thinking nonprofit organization in New York, embarked on a transformative project to rejuvenate its office space, aiming for an environment that fosters collaboration, innovation, and community engagement.
Our firm was tasked with the interior design of this vibrant space, providing comprehensive 3D renders and innovative design concepts to realize this vision. In pursuit of creating a stimulating and welcoming atmosphere, we focused on maximizing the use of natural light, incorporating vibrant colors to inspire creativity, and designing flexible workspaces that encourage teamwork and personal connection. Our design strategy aimed to reflect CCFY’s mission of empowering youth and building strong community ties, while ensuring the space remained functional and inspiring for all who work and visit there.
3D Renderings
The use of conceptual renderings played a crucial role. These renderings are sophisticated 3D images that preview the design of the space before construction starts. We utilized the latest design software to create these images, which showed how light would fill the rooms, the color schemes, and the layout of furniture and work areas.
Behind the Scenes
The project began with a detailed 3D scan site survey, allowing us to accurately assess and document the existing conditions through high-resolution photographs and precise dimensional data. This meticulous approach ensured that every aspect of the space was considered in our redesign.
Inspired by our transformation of CCFY ?
Let’s create something extraordinary together.