Jenavies Cafe
Location
Bronx, New York
Type
Restaurant
Square Footage
900 sq. ft
Completion Year
2020
Jenavie’s Cafe is a family-friendly restaurant catering to a diverse demographic, offering delectable comfort food and desserts for all ages.
Jenavies Cafe had a design that was cluttered, confusing and did not showcase their unique process of creating their signature milkshakes. Our team at Tirso Design was engaged to refresh the design, elevate the customer experience and make the restaurant more navigable.
Behind the Scenes
Delve into the transformation journey of Jenavie’s Cafe through our ‘Behind the Scenes’ visuals. From initial sketches to the final touches, these images chronicle the meticulous planning and execution that went into revitalizing the cafe. Witness how cluttered spaces were reimagined into vibrant, inviting areas, the construction of the interactive milkshake station, and the installation of state-of-the-art digital displays. It’s a testament to the dedication and hard work that our team, alongside the cafe’s staff, put into making this vision a reality.
Key Highlights
In the transformation of Jenavie’s Cafe, key moments stand out: the elegant wallpaper installation that immediately brightens the space, the setting up of interactive digital displays for an enhanced customer experience, and the meticulous mounting of lights for the exterior signage, invitingly illuminating the cafe’s presence. These highlights showcase our detailed work and the vibrant atmosphere we aimed to create.
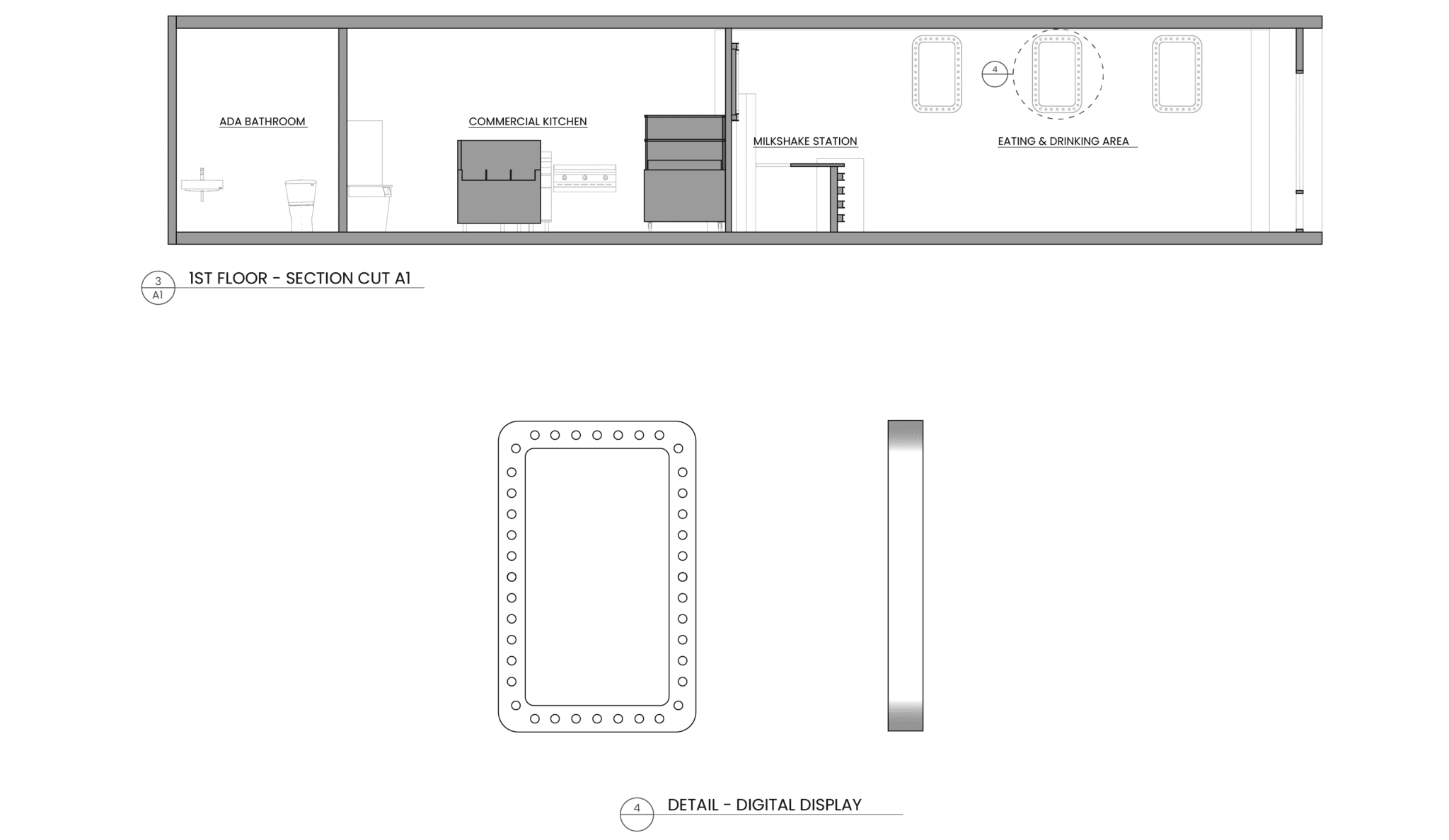
Digital Displays
At Jenavie’s Cafe, the digital displays are a central feature, revolutionizing how customers interact with our menu and create their custom milkshakes. These aren’t just ordinary screens; they are interactive, high-resolution displays that bring the cafe’s offerings to life. With vivid custom graphics and an intuitive interface, they guide guests through the selection process, showcasing the wide array of ingredients and combinations available.
This 3D model detail underscores the innovative approach we’ve taken, highlighting how each display is meticulously designed to not only attract attention but also to enhance the overall customer experience. It’s technology and creativity coming together to make every visit more engaging and fun.
Solutions
Interactive Milkshake Station: We introduced an engaging, customer-centric milkshake station, equipped with state-of-the-art digital displays for a personalized experience.
Improved Layout for Navigability: We reconfigured the cafe’s interior layout, enhancing the flow and making it easier for customers to move around, place orders, and enjoy their meals.
Enhanced External Signage: To attract more visitors, we upgraded the cafe’s exterior signage with eye-catching designs and lighting, effectively increasing its street visibility.
Marquee-Style Lighting: We implemented dynamic, marquee-style lighting across the counter facade and around TVs, adding a theatrical effect that enlivens the cafe’s atmosphere.
Optimized Seating and Tables: The seating arrangement and tables were redesigned for comfort and style, including QR codes on tables for convenient menu access.
Expanded Kitchen Space: We enlarged the kitchen area to improve operational efficiency, allowing for quicker service and a better culinary experience.
Flexible Track Lighting: General illumination was enhanced with versatile track lighting, allowing for adjustable lighting schemes to match any event or time of day.
Synchronized Lighting Show: Utilizing Madrix lighting control software, we synchronized the interior and exterior lighting for a captivating display that draws customers in.
The Outcome
The transformation was met with significant increase in foot traffic and customer satisfaction. The new design improved customer navigation, making the dining experience more enjoyable. The milkshake station, coupled with the fun and vibrant atmosphere, positioned Jenavie’s Cafe as a go-to spot for families.
Inspired by our transformation of Jenavies Cafe?
Let’s create something extraordinary together.