Client
Private
Private
Orlando, FL
Residential
3,000 sq. ft
2024
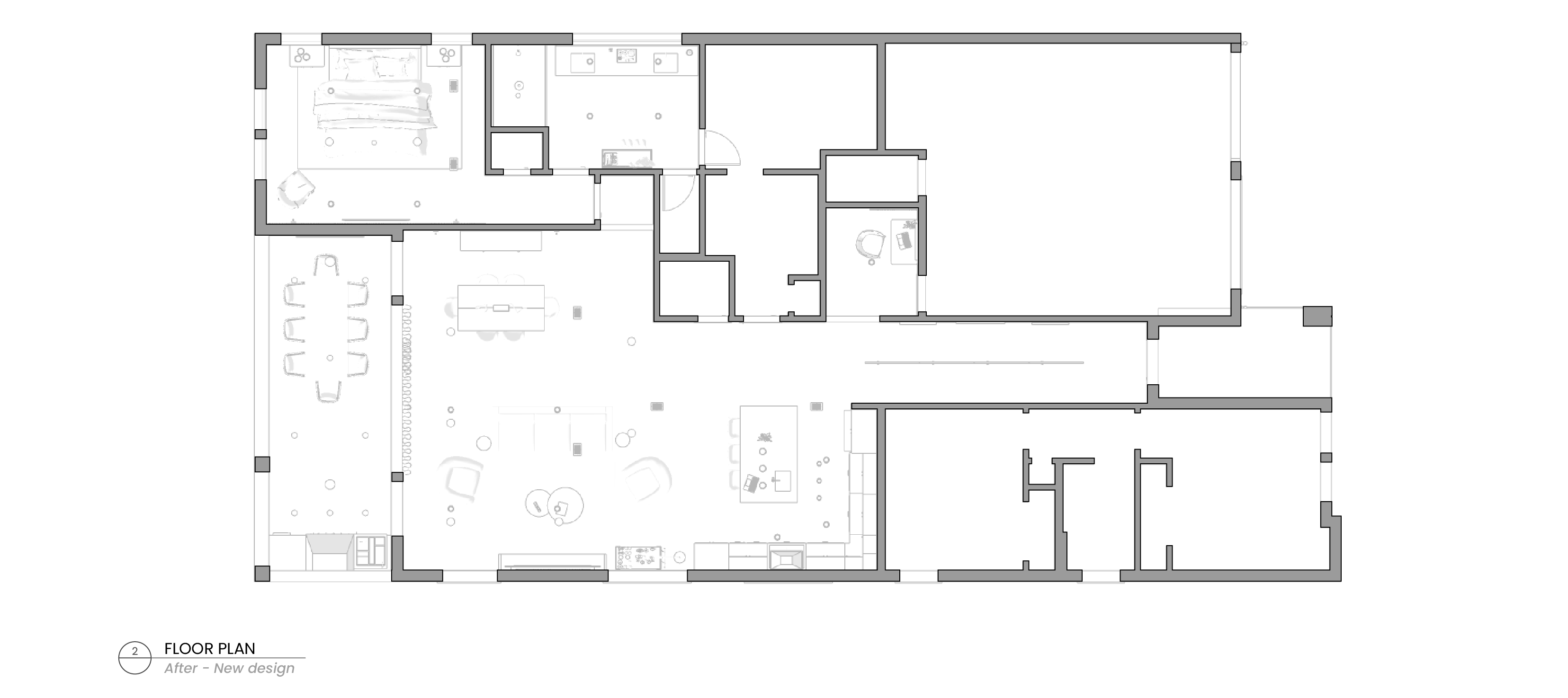
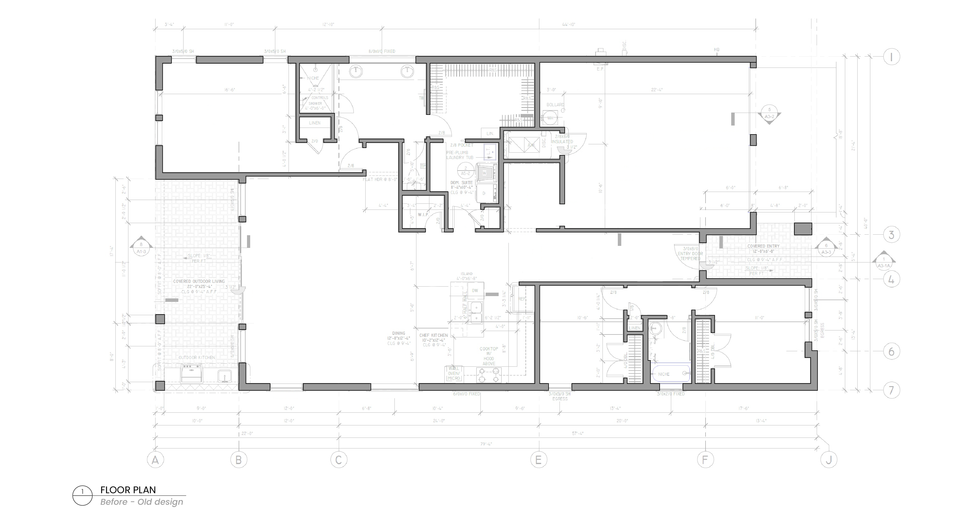
Tirso Design was contracted to deliver a comprehensive interior and lighting design solution for a newly constructed 3,000 square foot residence in the vibrant community of Lake Nona, Orlando. Tasked with transcending the standard options offered by the builder, our team provided expert guidance in interior layout, lighting, space planning, and the selection of furniture and wall coverings, all tailored to meet the unique preferences and lifestyle of our client.
Let’s create something extraordinary together.