Rancho Merengue
Location
Reading, Pennsylvania
Type
Nightclub
Square Footage
3,500 sq. ft
Completion Year
2022
Rancho Merengue, a decade-long family-owned nightclub in Redding, Pennsylvania, embarked on a transformative journey to modernize and enhance its patron experience.
The project presented a unique set of challenges, from outdated designs to mismatched furniture and inefficient space utilization. This case study explores the technical and creative solutions implemented to revitalize Rancho Merengue, turning it into a state-of-the-art venue.
3D Renderings
In this section, we present the design evolution of Rancho Merengue with our conceptual renderings. These images were key in illustrating to the Cruz family how their space could be optimized. Highlighting practical enhancements like the optimized bar layout and cohesive furniture selections, these renderings offered a clear vision of a nightclub designed not just for today, but for the future.
Behind the Scenes
Take a look at the transformation journey of Rancho Merengue from its initial state to a venue designed for the next era of nightlife. This gallery documents the crucial steps of our process: from deconstruction to the meticulous installation of state-of-the-art lighting and design elements. Each photo is a piece of the story, showcasing our team’s dedication and precision.
PROJECT MANAGEMENT
The project for Rancho Merengue streamlined its design and lighting, focusing on customer experience and operational efficiency. Management involved planning, budgeting, and overseeing the redesign, including updated VIP layouts and modern lighting solutions. This ensured a competitive edge in the nightlife market.
Custom Railing W/ Illuminated Sign
Custom detailing transforms ordinary spaces into signature experiences, as seen in our unique railing design for Rancho Merengue. The creation process, captured here in step-by-step visuals, reveals the intricate craftsmanship behind the custom railings. Adorned with an illuminated Rancho Merengue sign, these railings are not merely functional barriers but luminous beacons of brand identity, contributing to the club’s allure and atmosphere.
Custom Sign
Dive directly into the craftsmanship of Rancho Merengue’s custom railing with its illuminated logo sign. The 3D model spotlights the logo’s backlighting, detailing how it enhances the sign’s visibility and adds a dynamic layer to the club’s ambiance. The carefully engineered lighting not only spotlights the Rancho Merengue name but also creates an inviting glow that complements the venue’s modern aesthetic.
Solutions
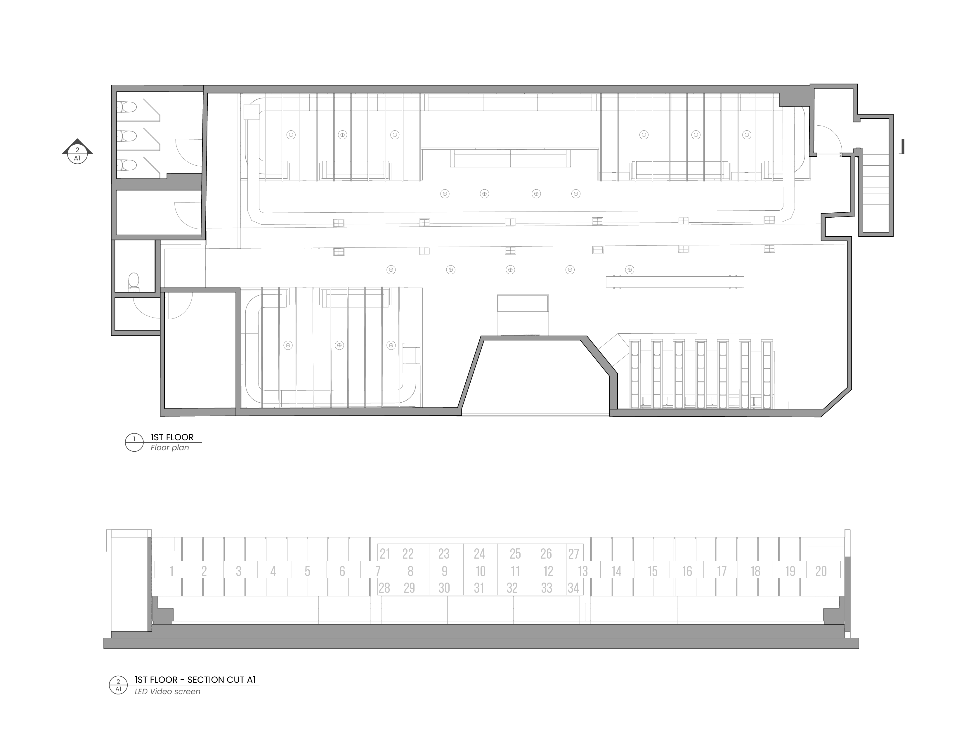
Interior Design Overhaul: The team introduced a new floor plan that optimized space utilization, including resizing elevated platforms and reconfiguring the VIP areas. This not only enhanced the aesthetic appeal but also improved the functionality of the space.
The Outcome
The renovation of Rancho Merengue showcases the power of innovative design and technology in transforming traditional spaces into modern, engaging venues. Through careful planning, creative solutions, and technical prowess, the project team overcame various challenges to deliver a revitalized nightclub experience.
Inspired by our transformation of Rancho Merengue?
Let’s create something extraordinary together.