Spin It Indoor Cycle Studio
Location
Lynchburg, VA
Type
Fitness
Square Footage
880 sq. ft
Completion Year
2023
Our project with Spin It Cycling Studio in Lynchburg, Virginia, is a testament to our commitment to innovation, creativity, and exceptional customer service. Undertaken entirely remotely, this project showcases our ability to design, plan, and execute sophisticated lighting systems without physical presence, leveraging technology and strategic planning to bring our client’s vision to life.
When Spin It approached us they presented us with an ambitious project: to design a vibrant lighting system for a new cycling studio, with no existing blueprints, drawings, or concrete ideas. The challenge was twofold: conceptualizing a dynamic lighting environment from scratch and executing the project entirely remotely, relying on digital communication to bridge the physical gap.
Behind the Scenes
Behind the scenes of every successful installation is a story of precision, from the careful selection and procurement of high-quality equipment to the strategic planning that ensures seamless execution. Our team thrives in orchestrating the complexities of programming, coordination, and technical preparation, all while managing the fine details remotely. It’s in these unseen moments of dedication—unpacking cutting-edge fixtures, programming the vibrant heart of a dynamic lighting system, and preparing the hardware for dispatch—that the foundation of our innovation is built.
Custom Ceiling LED Bars
This system incorporates several advanced lighting fixtures, including the ADJ Pixie Strip 60 and ADJ Pixie Driver 8000, which are known for their vibrant and versatile lighting capabilities. Complementing these are the ADJ Mega Hex Par lights, offering a spectrum of colors—red, green, blue, white, amber, and UV—adding depth and visual interest to the studio. These elements are controlled via the Madrix software and Madrix Stella hardware. Together, these components create a visually compelling and highly functional lighting environment tailored to energize and engage Spin It’s clientele.
This system was also designed for ease of installation and operation. By pre-labeling and pre-programming all of the equipment it made the installation process much simpler. Through our ability to provide remote support and detailed documentation this gave all of the guidance that the local contractors and electrician would need for a seamless installation.
Solutions
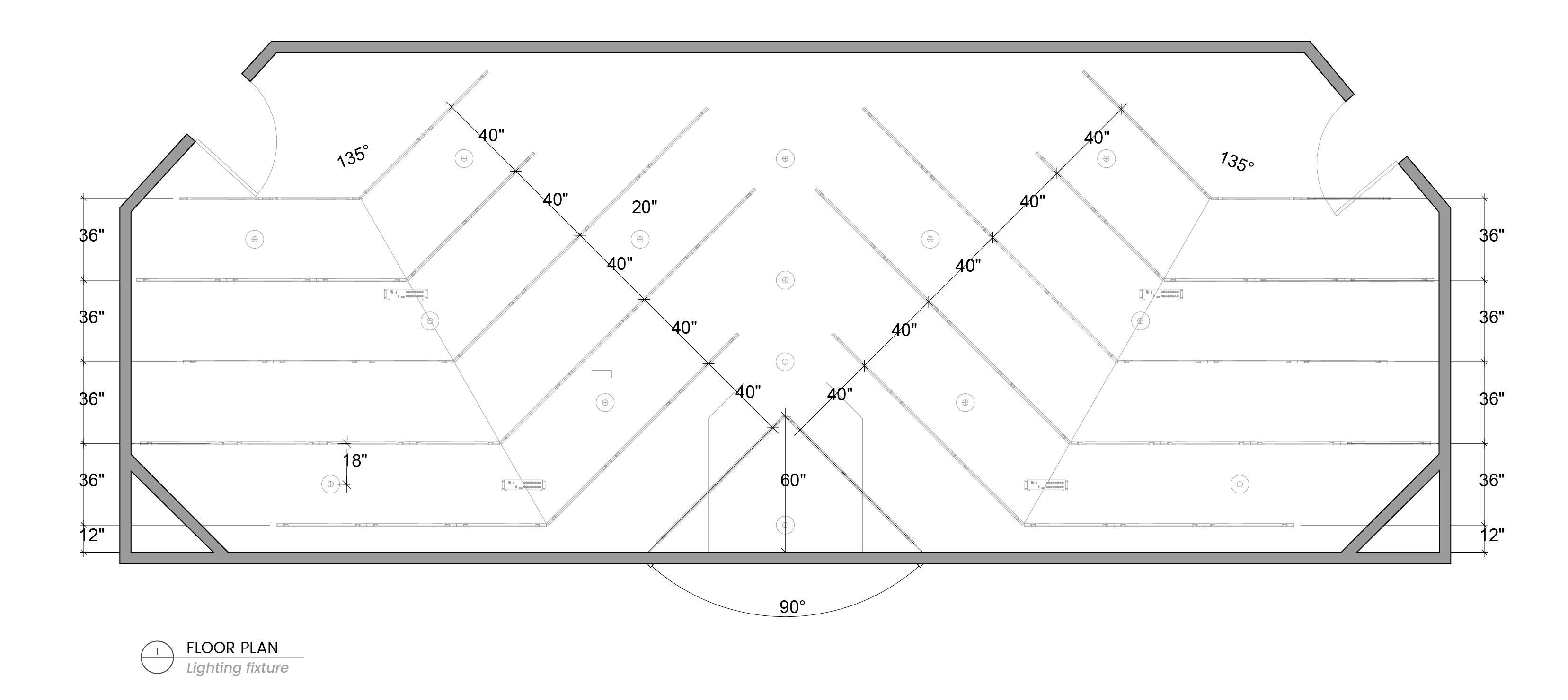
Initial Consultation and Planning: Our journey began with a FaceTime call, transforming initial sketches and photos into a detailed 3D model. Despite limited initial information, we meticulously gathered data, navigating through missing dimensions and planning for a drop ceiling installation in the 880 square foot space.
Customized Lighting Design: We provided four distinct lighting options, each tailored to the unique dimensions and ambience of the studio. Opting for a design that promised to energize and elevate the cycling experience, we introduced a blend of ADJ Pixie Strip 60 lights and ADJ Mega Hex Par lights, achieving a versatile mix of eye-catching and wash lighting effects, enriched with RGBWA+UV color mixing for added dimension.
Technical Documentation and Support: Beyond selecting fixtures, our comprehensive support included programming, system integration, and detailed documentation. This encompassed fixture placement, DMX wiring plans and network configurations, electrical requirements, and an all-encompassing system schematic, empowering our client with a seamless, plug-and-play installation solution.
Remote Collaboration and Execution: Leveraging technology for communication and support, we coordinated with local contractors and electricians, facilitating the installation through visual aids and direct guidance. Our remote troubleshooting and planning ensured a smooth, efficient execution, embodying our capability to deliver top-tier lighting solutions across distances.
The Outcome
Inspired by our transformation of Spin It VA?
Let’s create something extraordinary together.